$2,225 / mth + util
Address: 150 Tom Gavinski Street
Type: Townhomes
Neighbourhood: Arnprior – Callahan Estates
Availability: Available March 15
Floor Plans
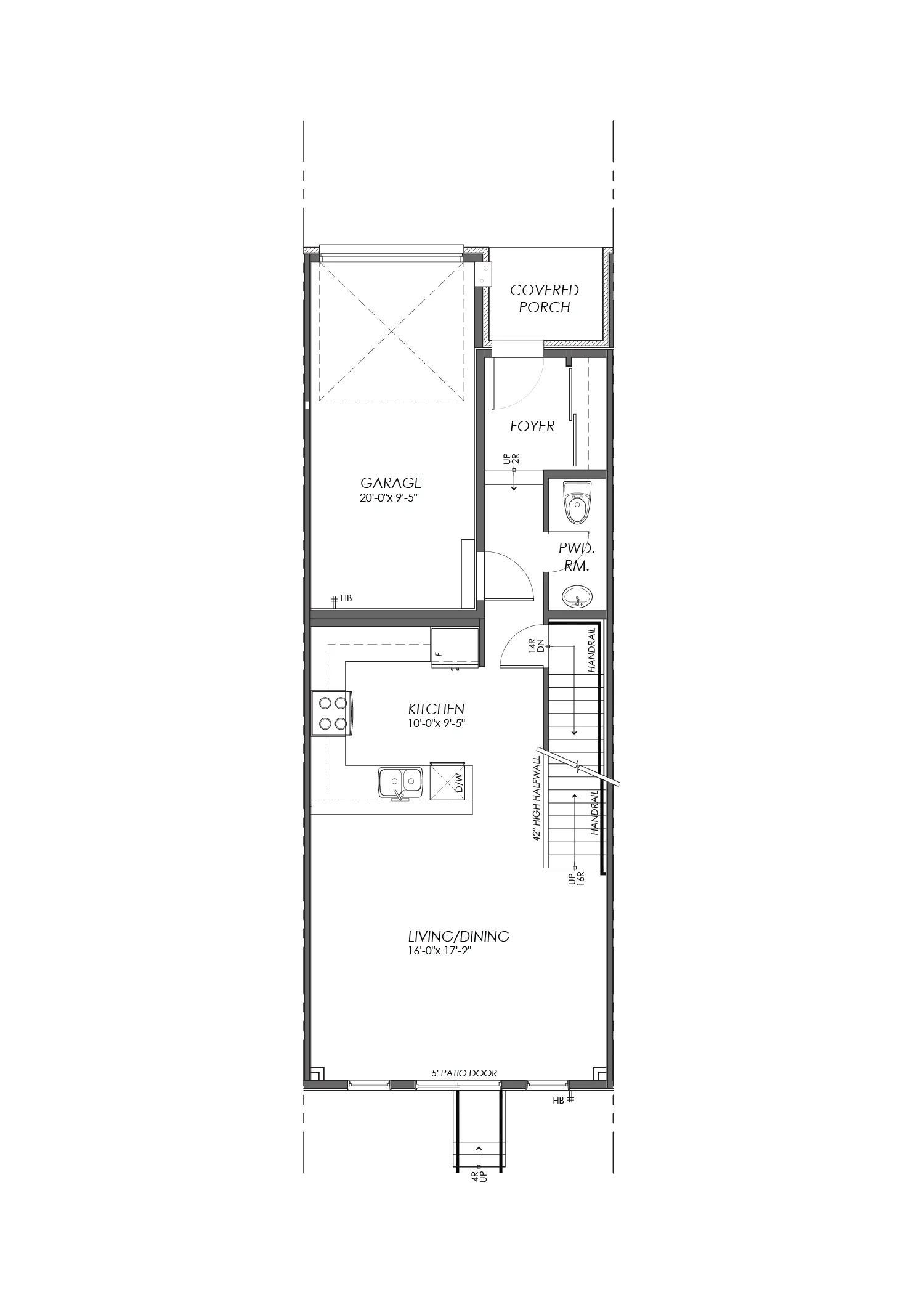
Download Floor PlanMain Floor
Second Floor
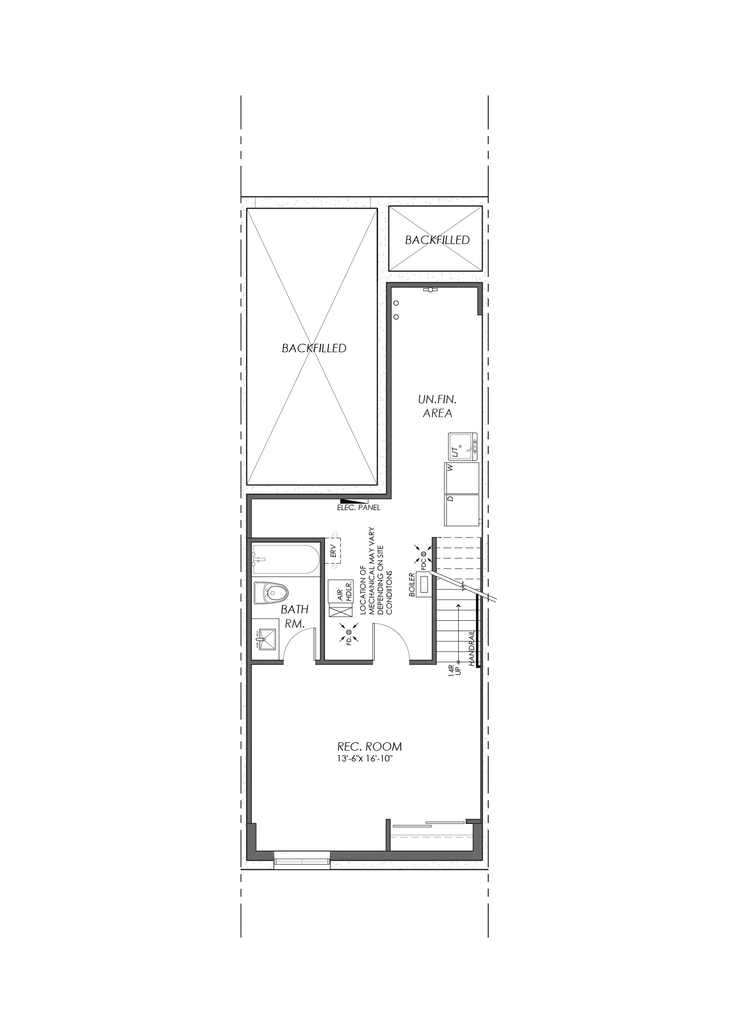
Basement
Room dimensions noted are to the face of finished walls. Areas noted are to the exterior of the framing/structure. Actual built dimensions may vary slightly due to construction requirements. E. & O. E.
Unit Features
- Hero 1 models (End unit)
- Built in 2023
- 3 bedroom townhome with 3.5 baths
- Primary bedroom has private ensuite
- Option to have large rec room in basement serve as an additional bedroom with private bathroom
- Open concept kitchen/living area
- White shaker-style kitchen cabinets
- Single-car garage with long driveway
- Close to schools, shops & green space
- Fenced in backyard
- Pet friendly
- Energy efficient windows
- Efficient HVAC system
- Utilities & rental equipment extra (boiler, ERV, air handler & heat pump)
- Grass cutting included
Gallery
Images are of a similar model. Actual units are not exactly as shown. Finishes and colours may vary.










